Loading Asset
Loading Asset
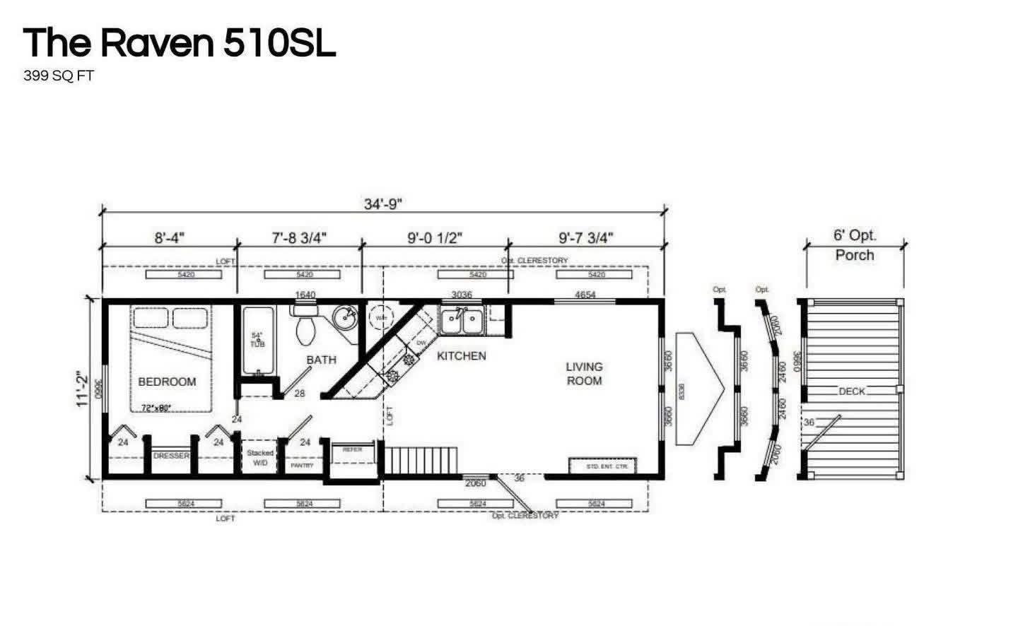
399 sqft Model
Available2022 used renewed Platinum Cottages – Majestic Series “Raven 510SL” 1 Bed | 1 Bath | Loft | 399 Sq Ft Finance Payment Available Viewing Available The Raven 510SL is a beautifully designed 399 sq ft RV park model that blends modern style with smart functionality, offering a spacious feel well beyond its footprint. This thoughtfully crafted home features 1 private bedroom, 1 full bathroom, and a versatile loft, making it ideal for full-time living, a guest home, or an investment property. The open-concept living area provides excellent flexibility for furniture placement and everyday comfort, enhanced by large windows that invite natural light throughout the space. The kitchen is efficiently laid out with ample cabinetry, countertop space, and full-size appliance accommodations, making it both practical and stylish. The main-floor bedroom comfortably fits a large bed and includes dedicated storage space, while the full bathroom offers a well-appointed layout with quality finishes and a tub/shower combo. A loft area above adds valuable extra space—perfect for additional sleeping, storage, or a cozy retreat. This home stands out with its modern black slat loft and stair railing, adding a sleek architectural touch that complements the overall design. Built with quality craftsmanship, it also includes a ductless A/C and heating system for year-round comfort. Key Features: • 399 sq ft of optimized living space • 1 bedroom + spacious loft • 1 full bathroom with modern finishes • Open-concept kitchen and living room • Contemporary black slat loft/stair railing • Energy-efficient ductless A/C & heat system • Designed for flexible furniture layouts Included in Price • Delivery and tie-down included • Installed ductless A/C & heating system • Manufacturer’s warranty • 7-year extended service contract Stock #R18P38 – Limited Availability This is a one-of-a-kind opportunity at this price point, and availability is limited. Pricing is subject to change on future orders, making this unit an excellent value for buyers ready to move forward.










Dimensions
40 L x 11 W x 13.5 H
399 sqft
Capacity
Sleeps 2-4 people
Bathroom
Flushing
System Type
Off-Grid Capable
Chassis
Trailer frame
Build Status
Prices vary based on customisation
Available
Every build is fully customisable. We can adjust floor plans, upgrade finishes, or build an entirely bespoke layout from scratch based on your vision.
Start Custom Build