399 sqft Model
AvailableCARDINAL LUXURY TINY HOME
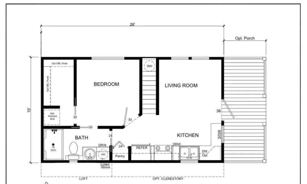
For Sale the Cardinal Luxury Tiny Home Roofing Type: Metal Roof (Snow load 100psf) Frame Type: Steel Frame Insulation: Spray foam insulation (walls,Floors, and ceiling is fully insulated) Heating System: 2 Mini Split for both heat and cooling Loft Hight: 5ft Loft space: 210 sqft In-house financing available 🏡 1 Bedroom | 1 Bath | Loft | Walk-In Closet Experience tiny home living at its finest with The Cardinal! This beautiful modern tiny home on wheels offers the perfect blend of comfort, craftsmanship, and efficiency — ready to move wherever life takes you. ✨ Features You’ll Love: Real wood cabinets and wood ceiling for a warm, natural feel Tile shower and full bath for everyday comfort Trex decking for long-lasting outdoor living space 2x6 exterior walls with spray foam insulation for year-round efficiency Loft area adds extra sleeping or storage space Walk-in closet for easy organization 🚚 Delivery Includes, setup, utility connections, insulated skirting, stairs and cement foundation if required — truly move-in ready! 🌿 Perfect for full-time living, Airbnb rentals, vacation cabins, or downsizing to a simpler lifestyle. 💰 Affordable, energy-efficient, and built to last — The Cardinal is where quality meets freedom. 🚨🚨NB Price does not include delivery and set up. As our delivery and set up fees varies depending on the final destination of the home.




Complete Archive







Specifications
Dimensions
32 L x 15 W x 13.5 H
399 sqft
Capacity
Sleeps 2-6
Bathroom
Flushing
System Type
Off-Grid Capable
Chassis
Build Status
Available
Key Features Included
Mainbedroom
Loftspac
Fullkitchen
bathroom
Porc
W/D
Want something different?
Every build is fully customisable. We can adjust floor plans, upgrade finishes, or build an entirely bespoke layout from scratch based on your vision.
Start Custom Build