Loading Asset
Loading Asset
550 sqft Model
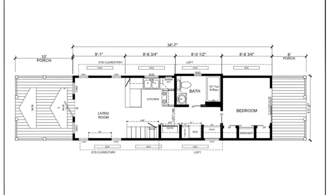
AvailableFor Sale the Custom Barn Owl Tiny Home Roofing Type: Metal Roof (Snow load 100psf) Frame Type: Steel Frame Insulation: Spray foam insulation (walls,Floors, and ceiling is fully insulated) Heating System: 2 Mini Split for both heat and cooling Loft Hight: 5ft Loft space: 200 sqft In-house financing available 🏡 Custom Barn Owl Tiny House – Comfort, Style & Smart Living in 399 Sq. Ft. Step into thoughtfully designed tiny living with this 399 sq. ft. Custom Barn Owl Tiny House, built to deliver comfort, functionality, and modern charm in every inch. From the moment you arrive, you’re welcomed by a cozy screened-in front porch, perfect for relaxing mornings or evening downtime. On the opposite end, a private rear porch off the bedroom creates a peaceful retreat, giving you the best of both indoor and outdoor living. Inside, the home opens into a bright, open-concept living room with tall ceilings and clerestory windows that bring in natural light, creating an airy and spacious feel. The living area flows seamlessly into a beautifully designed U-shaped kitchen, complete with a bar seating area, ample counter space, double sink, and room for all essential appliances—ideal for both everyday living and entertaining. Just off the kitchen, you’ll find a full bathroom featuring a tub/shower combo, vanity, and toilet, along with a conveniently located stacked washer and dryer area. The home also includes a built-in desk/workspace, perfect for remote work or study, as well as additional storage and utility space to keep everything organized. The main-floor bedroom offers comfortable living with space for a queen-size bed, plus a dedicated dresser/closet area for storage. Above, the expansive loft provides additional sleeping or lounge space and overlooks the main living area, enhancing the home’s open feel. ✨ Key Features: 399 sq. ft. open floor plan Screened-in front porch + private rear porch Spacious U-shaped kitchen with bar seating Full bathroom with tub/shower combo Stacked washer/dryer space Built-in desk/work area Queen-size main-floor bedroom with storage Large loft for extra sleeping or living space Tall ceilings with clerestory windows for natural light ✔ Included in the Price: Air conditioning system installed Entry steps included Manufacturer’s warranty + 6-year extended service contract (7 years total coverage) Whether you're looking for a full-time residence, vacation getaway, or investment rental, the Custom Barn Owl Tiny House offers the perfect balance of efficiency, comfort, and modern living. 📞 Contact us today to schedule a viewing or secure this home—inventory moves fast! 🚨🚨NB Price does not include delivery and set up. As our delivery and set up fees varies depending on the final destination of the home.










Dimensions
50 L x 11 W x 14 H
550 sqft
Capacity
Sleeps 2-5 people
Bathroom
Flushing
System Type
Off-Grid Capable
Chassis
Trailer Frame
Build Status
Available
Main bedroom
loft space
Bathroom
Full kitchen
double porch
W/D
Every build is fully customisable. We can adjust floor plans, upgrade finishes, or build an entirely bespoke layout from scratch based on your vision.
Start Custom Build