Loading Asset
Loading Asset
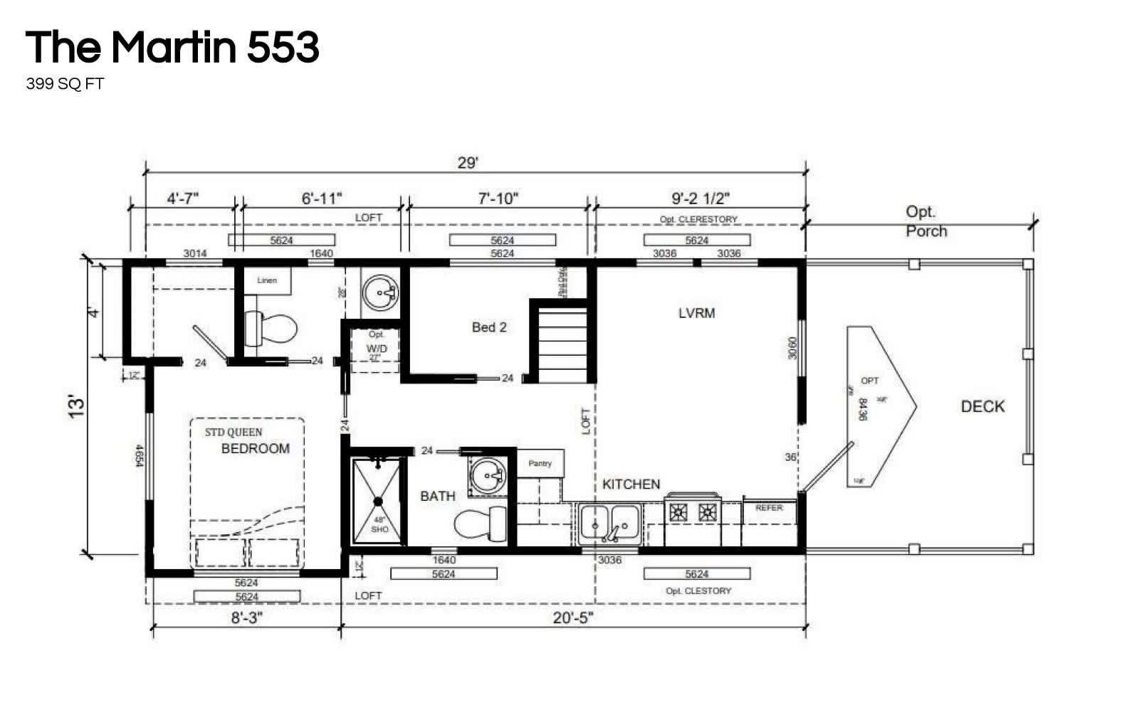
399 sqft Model
Available2023 Platinum Cottages – Majestic Series “Martin 553” | 399 SQ FT | 2 Bed • 1.5 Bath • Loft Finance Payment Available Introducing the Martin 553, a thoughtfully designed 399 sq. ft. RV park model that combines smart space planning with modern comfort. This model offers 2 bedrooms, 1.5 bathrooms, and a spacious loft, making it one of the most versatile and functional tiny homes available. Dimensions & Layout: - Overall length: 29 feet - Width: approximately 13 feet - Total living area: 399 sq. ft. - Optional front porch/deck extension for added outdoor living space Interior Features: - Spacious Living Room (LVRM): Open-concept design with ample room for seating and entertainment, enhanced by natural light from optional clerestory windows. - Full Kitchen: with a refrigerator, cooktop, sink, and pantry storage. Efficient layout maximizes counter space and functionality. - Primary Bedroom: Fits up to a queen-size bed, includes a walk-in closet, and offers direct access to a private half bath for added convenience. - Second Bedroom (Bed 2): Ideal for guests, office space, or additional storage. - Full Bathroom: Includes a large 48” shower, toilet, and vanity, with space designed for upgraded tile finishes. - Half Bath: Conveniently connected to the primary bedroom. - Laundry Area: Optional washer/dryer (W/D) space included within the layout. - Loft Area: Generous overhead loft provides additional sleeping space or storage, accessible via built-in stairs. Construction & Build Highlights: - Durable construction with modern finishes throughout - Designed for year-round comfort with ductless A/C and heating system - Energy-efficient windows, including optional clerestory windows for added light - Functional stair access to loft with integrated design Additional Features Included: - Delivery and tie-downs within 100 miles (additional distance fees may apply) - One set of temporary wooden steps - Manufacturer’s warranty plus extended warranty - Professionally designed interior options and upgrades as shown The Martin 553 stands out for its ability to offer true multi-room living in a compact footprint, making it ideal for full-time living, guest housing, or investment use. This is a limited-availability unit, and pricing is subject to change for future orders. For more details or to reserve this home, feel free to reach out!












Dimensions
36 L x 13 W x 13.5 H
399 sqft
Capacity
Sleeps 2-6 people
Bathroom
Flushing
System Type
Off-Grid Capable
Chassis
Trailer frame
Build Status



Available
Every build is fully customisable. We can adjust floor plans, upgrade finishes, or build an entirely bespoke layout from scratch based on your vision.
Start Custom Build